For Sale

1480 CHANDLER Road, Lawrenceville, GA 30045

1480 CHANDLER Road

$625,000
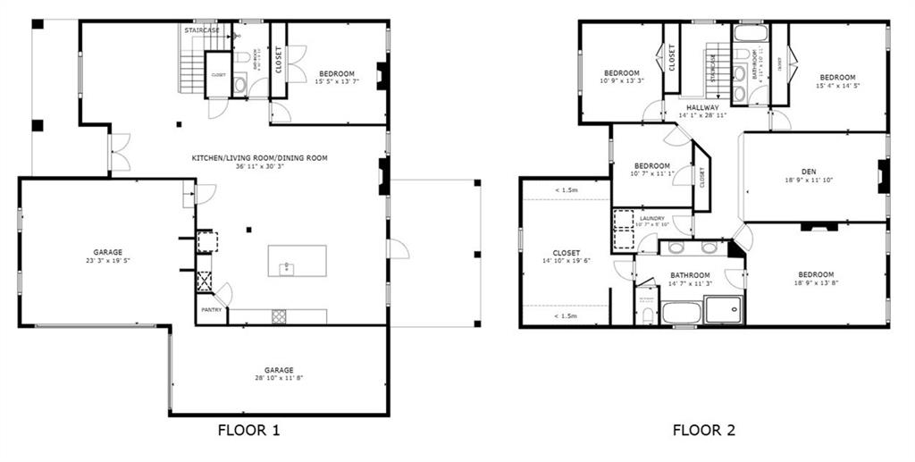
Experience the rare combination of modern elegance and everyday ease in this exceptional 5-bedroom, 3-bath residence--complete with a highly sought-after 3-car garage and the freedom of no HOA. Designed to elevate both daily living and memorable entertaining, this home delivers refined style, generous space, and true versatility.
Nestled on a beautifully landscaped private lot, the home welcomes you with soaring ceilings and walls of natural light that create an airy, sophisticated ambiance. The open-concept design flows seamlessly from room to room, offering both connection and comfort. At the heart of the home, the chef-inspired kitchen impresses with premium finishes, abundant custom cabinetry, and an effortless transition into the dining and living areas--perfectly suited for gatherings both intimate and grand.
A spacious upstairs loft provides flexible living tailored to your lifestyle--ideal as a media lounge, executive home office, or creative play space. The thoughtfully positioned main-level guest suite with a full bath ensures comfort and privacy for visitors or multigenerational living.
This is more than a home--it's a private retreat where modern luxury meets the freedom to live beautifully on your own terms.

2/22/2026 12:00PM - 3:00PM EST

5
beds

3
baths

3,176 Sq.Ft. LIVING AREA

0.97 Acres lot

Regan Maki Couch

Regan Maki Couch

Features & Amenities

Interior

  • total bedrooms5
  • Total bathrooms3
  • full bathrooms3
  • Laundry room Laundry Room, Upper Level
  • Flooring Carpet, Ceramic Tile, Hardwood
  • Fireplace Factory Built, Great Room, Other Room
  • APPLIANCES Dishwasher, Electric Cooktop, Electric Oven, Electric Water Heater, Microwave, Range Hood
  • other interior Features Bookcases, Disappearing Attic Stairs, Double Vanity, Entrance Foyer, High Ceilings 9 ft Upper, High Ceilings 10 ft Main, Walk-In Closet(s)

Area & Lot

  • Status For Sale
  • OPEN HOUSE

    2/22/2026 12:00PM - 3:00PM EST

  • Living Area3,176 Sq.Ft.
  • Total Area3,176 Sq.Ft.
  • Lot Area0.97 Acres
  • MLS® ID7719316
  • TypeResidential
  • YEAR BUILT2021
  • Architecture StylesCraftsman
  • Water FrontageNone
  • View DescriptionNeighborhood
  • Elementary SchoolStarling
  • Middle SchoolCouch
  • High SchoolGrayson

Exterior

  • STORIES2
  • Garage Space3.0
  • water SourcePublic
  • utilitiesCable Available, Electricity Available, Phone Available, Water Available
  • PoolNone
  • roofComposition
  • lot featuresBack Yard, Front Yard, Landscaped
  • parkingAttached, Garage, Garage Door Opener
  • HEAT TYPECentral, Electric, Heat Pump
  • AIR CONDITIONINGCeiling Fan(s), Central Air, Electric
  • sewerSeptic Tank
  • SubstructureSlab
  • Disability FeaturesNone
  • security FeaturesCarbon Monoxide Detector(s), Smoke Detector(s)
  • Green featuresNone
  • other exterior FeaturesPrivate Entrance, Private Yard, Rain Gutters

Financial

  • Sales Price$625,000
  • Real Estate Tax $8,793/yr

Work With Us

Regan's amazing team of Agents and in-office Staff are greatly trained and mentored to provide the most professional, legal and satisfying services for you. The Regan Maki Team has one primary goal and that is to continue to raise the service bar in this industry, one client at a time.